Региональные филиалы компании Агромаш:
Диссольвер (аналоги импортных)

Диссольвер - наиболее востребованные модели |
|||
| Диссольвер закрытого типа | Диссольвер с подкатной дежей | Диссольвер | Диссольвер аналог импорного |
![]() |
![]() |
![]() |
![]() |
| Диссольвер вакуумный | Диссольвер с двумя мешалками | Диссольвер для краски | Диссольвер |
![]() |
![]() |
![]() |
![]() |
Диссольвер (аналоги импортных)
Одно из основных назначений диссольвера является диспергирование сухих компонентов (красителей, пигментов) в жидких средах. Итоговым результатом служит получение паст, эмульсий и взвесей, обладающих высокой степенью диспергации.
|
|
![]() |
Диссольверы поддерживают три процесса: смачивание твердых компонентов в жидкости; механическое измельчение и разделение скоплений частиц; стабилизацию вновь образованных мелких элементов и предотвращение их повторной флокуляции (слипания). Каждый из этих этапов важен для образования гомогенных смесей с равномерной структурой и стабильной биологической активностью
В фармацевтическом производстве диссольвер позволяет изготовлять коллоидные растворы. При помощи диссольвера осуществляется распределение твердых веществ в жидкой среде таким способом, что они все время находятся во взвешенном состоянии, а не осаждаются. Наилучшие условия для измельчения и перемешивания достигаются, когда в образовавшейся воронке видна часть диссольверной фрезы.
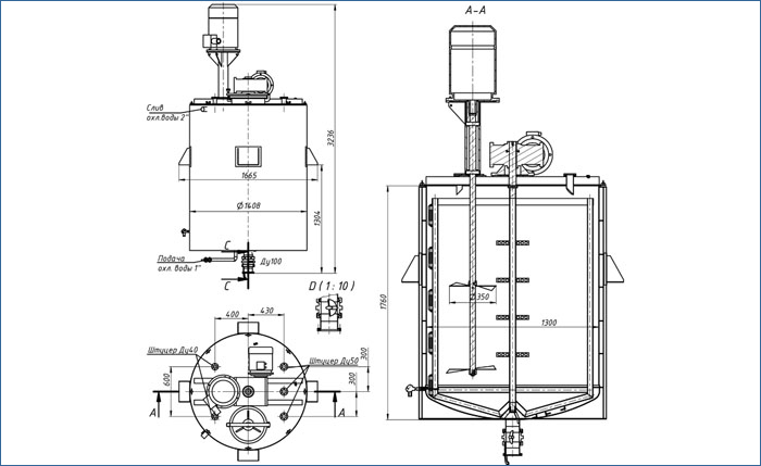
Дежа дисольвера представляет собой передвижную емкость различных объемов (100-1000 литров), в которой происходит процесс диспергирования.
|
![]() |
В различных модификациях диссольверов применяются мешалки разных типов: Рамная мешалка диссольвера работает как скребок и не позволяет липким и густым веществам оседать на дне и стенках, а быстроходная типа фрезы, измельчает и тщательно перемешивает сырье до получения однородной массы компонентов лакокрасочного материала.
По по запросу заказчика дисольвер комплектуется преобразователем частоты, позволяющим осуществлять регулирование скорости вращения вала в диапазоне 0-3000 об/мин, а также программировать его скоростные режимы во времени.
Диссольверы могут изготавливаться различной емкостью и оснащаться рубашкой для обогрева или охлаждения. Детали и узлы, соприкасающиеся с продуктом выполнены из нержавеющей стали.
![]() |
![]() |
Диссольвер может быть снабжен одной или двумя мешалками - тихоходной рамной и быстроходной зубчатой. Это позволяет: лучше перерабатывать вязкие материалы; улучшить качество диспергирования и производительность; увеличить степень заполнения сосуда перерабатываемым материалом до 95% за счет удаления воронки; улучшить теплообмен. Для особо вязких смесей диссольверы такого типа могут оснащаться тремя специальными мешалками.
|
![]() |
![]() |
В зависимости от технологических требований рабочей среды, по требованию заказчика возможно изменение конструкции и комплектации диссольвера.
По желанию заказчика диссольвер может комплектоваться взрывозащищенным электродвигателем и дежами из нержавеющей стали.
|
![]() |
| Диссольвер - внутренний вид | |
![]() |
![]() |
Вакуумный диссольвер (аналог импортных)
Вакуумные диссольверы предназначены для диспергирования сухих компонентов (например, пигментов, красителей и других материалов) в жидких средах с целью получения взвесей, эмульсий и паст с высокой степенью диспергации. При этом процесс диспергирования происходит в условиях вакуума.
Принцип действия основан на использовании быстроходной фрезерной мешалки, которая тщательно измельчает продукт до получения однородной массы в условиях вакуума.
Основные отличия вакуумного диссольвера от стационарного диссольвера: – это прочный корпус, герметичная крышка и люк, специальные уплотнения валов перемешивающих устройств, наличие вакуумного насоса и автоматической системы поддержания вакуума. Для создания и поддержания разрежения в рабочей емкости диссольвера, используются вакуумные насосы различных типов. Вакуумный диссольвер может быть выполнен в варианте многослойной емкости с рубашкой обогрева или охлаждения. По способу нагрева диссольверы подразделяются на электрические (теплоноситель вода, глицерин), в этом случае нагрев осуществляется при помощи ТЭНов, и на паровые (теплоноситель пар). Детали и узлы, соприкасающиеся с продуктом выполнены из нержавеющей стали.
![]() |
![]() |
Варианты схем выпускаемых диссольверов
Диссольвер с площадкой обслуживания
Рекомендуем пищевое оборудование:
| Пищевой насос | Гомогенизатор | Варочный котел | Сироповарочеый котел |
|
![]() |
![]() |
![]() |
| Маслотопка | Шаровая мельница | Котел для варки | Бродильная емкость |
|
![]() |
![]() |
![]() |
| Вакуумный реактор | Вакуумно-выпарная установка | Вакуумная емкость | Диссольвер |
|
![]() |
![]() |
![]() |
| Установки смешения | Жиротопка | Вакуумный миксер гомогенизатор | Смесители сыпучих материалов |
|
![]() |
![]() |
![]() |
| Автоклав | Биореактор | Ферментатор | Емкости из н/стали |
![]() |
![]() |
![]() |
![]() |
| Вакуумный куттер | Ванна пастеризации | Ванна твороженная | Ванна сыродельная |
![]() |
![]() |
![]() |
![]() |












































